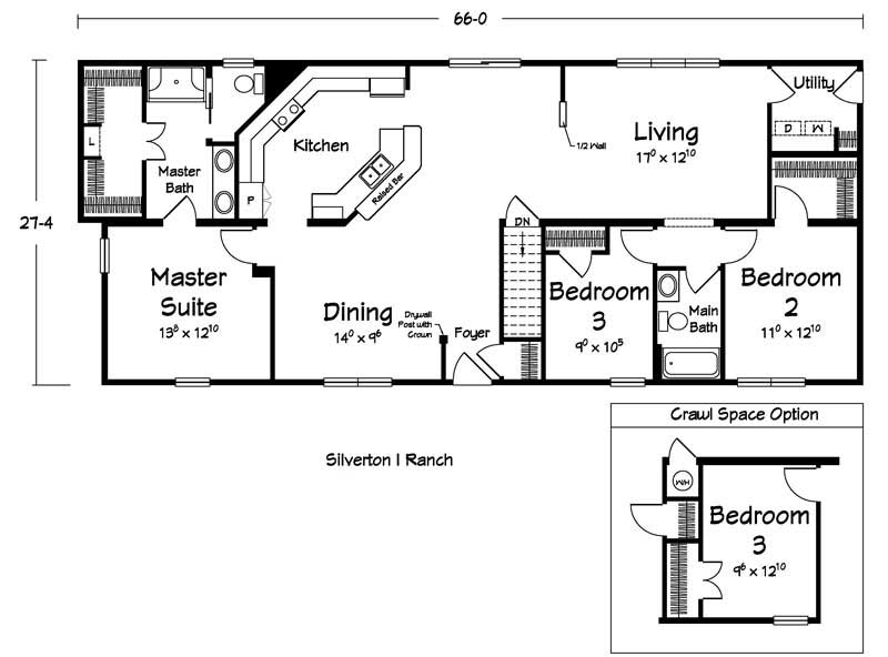
Silverton I
Square Feet: 1777
Bedrooms: 3
Bathrooms: 2
Width: 27.4
Length: 66
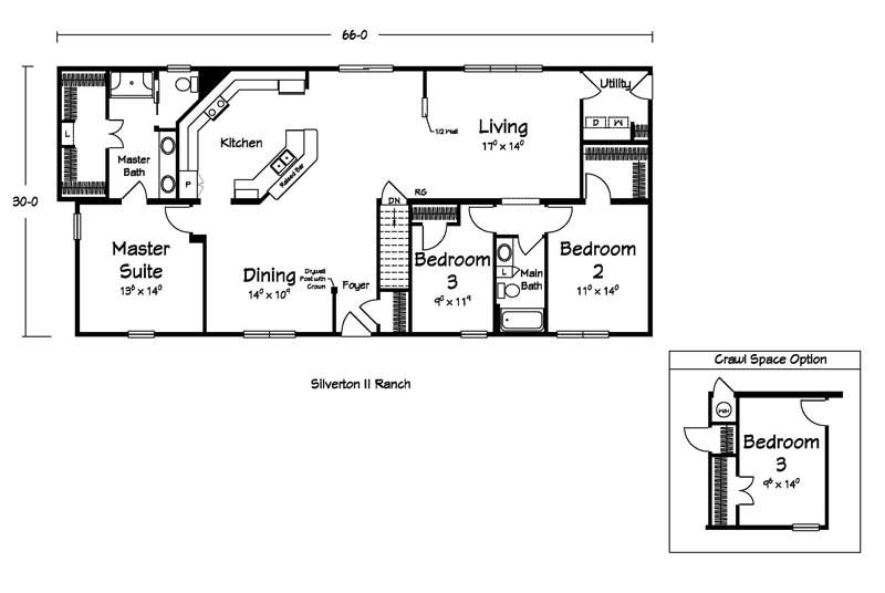
Silverton II
Square Feet: 1950
Bedrooms: 3
Bathrooms: 2
Width: 30
Length: 66
Square Feet: 1777
Bedrooms: 3
Bathrooms: 2
Width: 27.4
Length: 66
Square Feet: 1950
Bedrooms: 3
Bathrooms: 2
Width: 30
Length: 66