Gala I
Square Feet: 1316
Bedrooms: 3
Bathrooms: 1.75
Width: 30
Length: 44
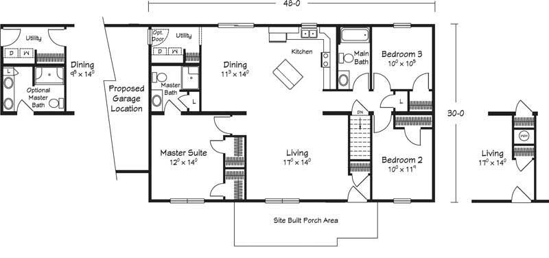
Gala II
Square Feet: 1436
Bedrooms: 3
Bathrooms: 1.75
Width: 30
Length: 48
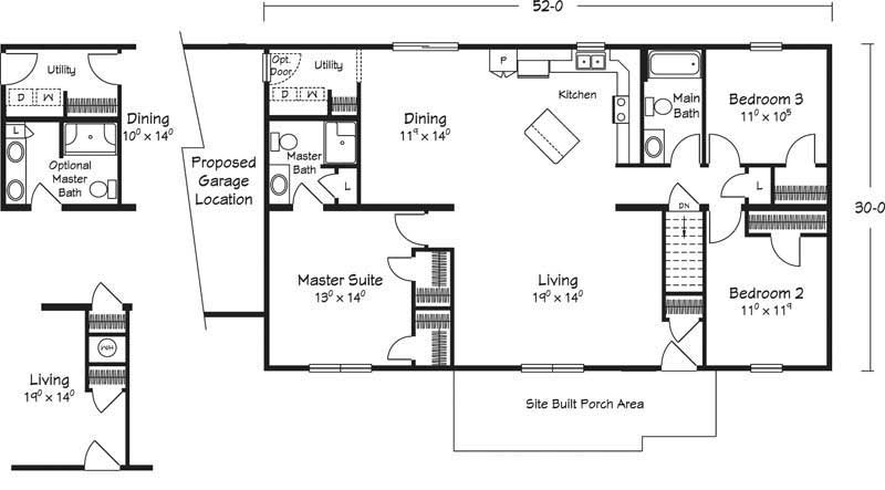
Gala III
Square Feet: 1556
Bedrooms: 3
Bathrooms: 1.75
Width: 30
Length: 52
Gala IV
Square Feet: 1675
Bedrooms: 3
Bathrooms: 2
Width: 30
Length: 56





