(845) 856-7951
Menu
Home
Plans
Ranch Style Homes for Sale
Bi Level Homes for Sale
Cape Cod Homes for Sale
Two Story Homes for Sale
Chalet Homes for Sale
Specs
Modular Home Specifications
Stick Built Home Specifications
Full Turn Key Specifications
Warranty
Modular
Modular Homes
Custom
Projects
Projects
Commercial Projects
Photos
Homes
Barns & Garages
About
About Martell Builders
Testimonials
Affiliations
FAQ
Blog
10 Year Warranty
Contact
Home
>
All Martell Modular Homes
>
All Ranch Style Homes
Berryville: Martell Home Builders
Berryville: Martell Home Builders
Berryville: Martell Home Builders
Previous
Berkshire
Next
Brentwood
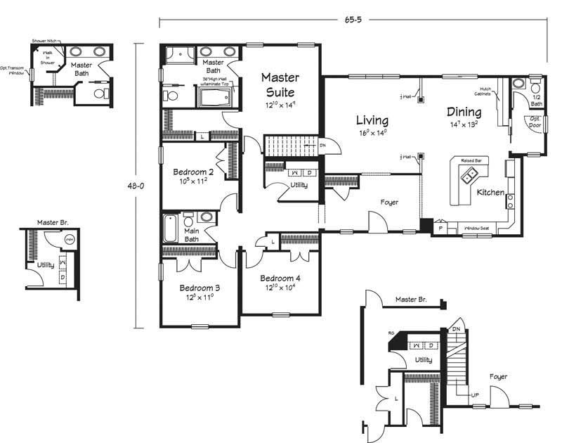
Berryville
Square Feet: 2262
Bedrooms: 4
Bathrooms: 2.5
Width: 48
Length: 65.5
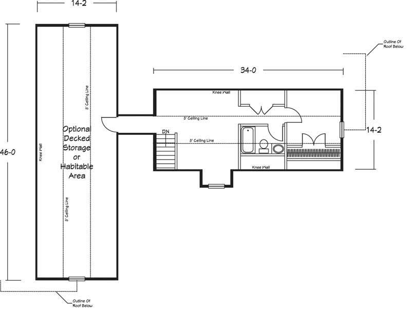
Proposed 2nd level shown
Contact Us
Menu
Please ensure Javascript is enabled for purposes of
website accessibility