Beautiful, Modern Ranch Home for Sale
Welcome to your dream ranch home! This stunning pre-build design boasts 1,290 square-feet of modern living space, featuring 3 spacious bedrooms and 2 elegant bathrooms. The striking exterior design sets the tone for a contemporary lifestyle, while the open concept living, kitchen, and dining area creates a warm and inviting atmosphere.
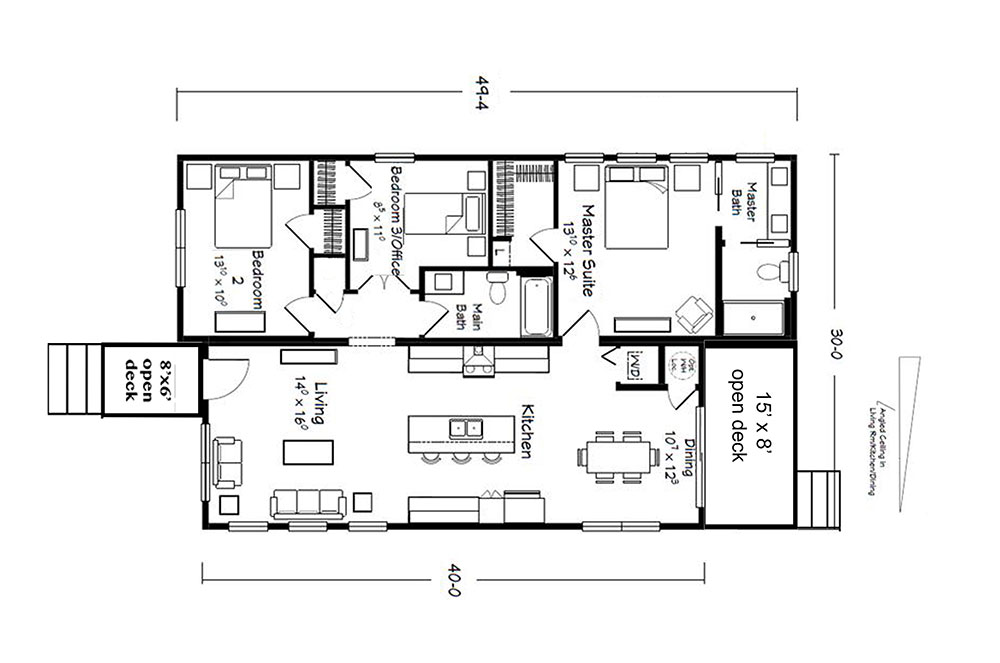
Main Living Area
As you pull down the driveway and step through the main entrance of the home, you are welcomed into an open, bright living area with an impressive, sloped ceiling and oversized picture windows. Continue through to the galley style kitchen, with a large eat in island and custom cabinetry with soft close drawers that maximize storage space and style.
Dining Area that Opens to Inviting Outdoor Space
At the rear end of the main living area is a large dining area, perfect for hosting all your closest friends. Past the dining room, step through sliding glass doors onto your oversized open back deck that overlooks a tranquil, wooded back yard.
Private Master Suite
A private master suite is located at the rear of the home. This area offers a serene retreat with an en suite bath and a generous walk-in closet.
Additional Bedrooms and Bathroom
Located off the open living area are two more bedrooms and the main bath. Both additional bedrooms are large enough to accommodate a queen size bed and boast their own ample closet space. The main bath is accessible through a shared hall and situated perfectly for guest use.
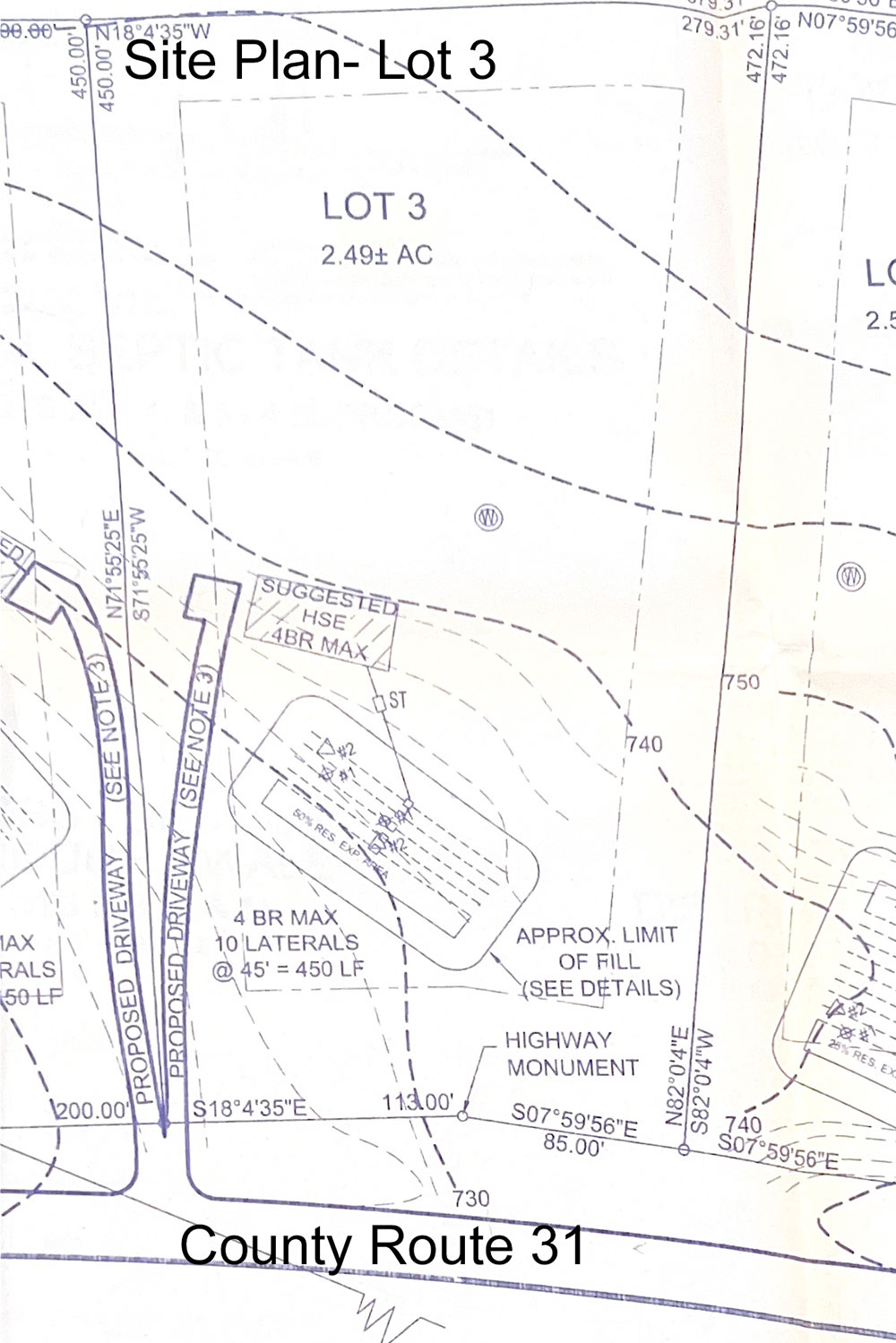
Picturesque Lot
Located just off of County Route 31, this 2.49 acre lot is perfectly situated close enough to town, while still providing plenty of privacy. Located across from state land, this lot is sure to be a quiet and tranquil retreat!
Home Features:
• 3 bedrooms, including master
• 2 full bathrooms
• Open concept
• Wood trim and molding
• Double-hung vinyl windows
• Forced air heat system
• 10-year home warranty
Schedule an appointment to discuss this beautiful home design today!
Price for the package: $422,600.



